エクシードシリーズ

落差工の設計[床止め機能版] Ver.4

落差工の設計[床止め機能版] Ver.4

  • 概要・特徴
  • 機能・仕様
  • 価格・購入

落差工の設計[床止め機能版] Ver.4

建設省河川砂防基準(案)同解説に基づき「直壁一体型構造」「直壁分離型構造」「緩傾斜型構造」の床止めの設計計算を行います。

Ver.4 リリース日:2023.9.27
Ver.4 改良内容
機能アップ履歴

システム概要

落差工の設計[床止め機能版]は、「改訂新版 建設省河川砂防技術基準(案)同解説 設計編 l 」および「床止めの構造設計手引き」の計算方法に基づいて、「直壁一体型構造」「直壁分離型構造」「緩傾斜型構造」の床止めの設計計算を行います。安定計算・部材設計を行う他、護床工の設計を行う事ができます。

全体画面

入力 基本条件
入力 断面形状(直壁分離型)
入力 断面形状(緩傾斜型)
計算結果
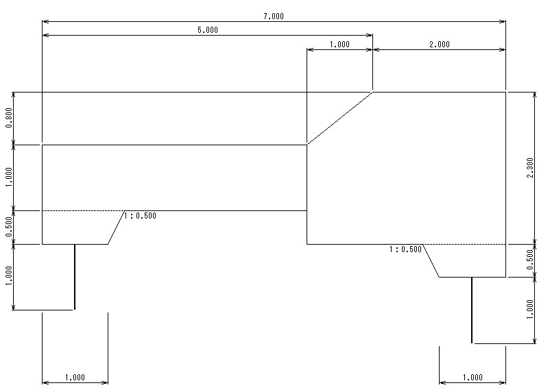
落差工の設計[床止め機能版]_断面形状図
断面形状図
全体形状図
落差工の設計[床止め機能版]_ヘルプ画面
ヘルプ画面
落差工の設計[床止め機能版]_印刷プレビュー
印刷プレビュー

適用基準・参考文献

  • 改訂新版 建設省河川砂防基準(案)同解説 設計編Ⅰ 平成9年10月 (日本河川協会)
  • 床止めの構造設計手引き  平成10年12月 (国土技術開発センター)

機能および制限

計算機能

床止め「直壁一体型構造」「直壁分離型構造」「緩傾斜型構造」の設計計算として、次の計算機能を有しています。

  • 床止めの設計計算
     水理計算・水叩き長・水叩き厚の設計・しゃ水矢板の根入れ長の計算・レインの式による浸透路長の照査を行います。
  • 安定計算 
     床止めの転倒・滑動・支持力の計算及びその照査を行います。
  • 部材設計
     本体部材と水叩き部材の応力度計算及びその照査を行います。
     ただし、直壁分離型構造では本体部材のみを対象とします。
     緩傾斜型構造では部材計算は対象外となります。
  • 護床工の設計
     護床工長の計算、護床ブロック重量の計算を行います。
     補助構造物(エンドシル、段上がり)による強制跳水の計算を行うことができます。

水叩き長、水叩き厚、しゃ水矢板長、護床工長などの計算は、指定した「丸め」設定に従った切り上げ値で決定することが可能です。

制限事項

  • 床止めにおける流れの形態は、「完全越流」状態であることを前提としています。
    「不完全越流」状態と判定された場合は、設計対象外となります。
  • しゃ水矢板の根入れ長と水叩き厚の「計算値」設定は、いずれか一方のみとなります。
    いずれも「計算値」設定とした場合の同時トライアル計算はできません。
  • 緩傾斜型構造では部材計算は対象外となります。
  • 直壁分離型構造の部材計算は本体のみを対象とします。
  • 底面に突起を設けることはできません。
  • 各護床ブロック重量の算定は、「床止めの構造設計手引き」P73~75に記載の護床工B区間の計算方法に準じるものとします。これは、便宜的に使用可能であると記述されています。「床止めの構造設計手引き」P70~73に記載されている護床工A区間のブロック重量の算定方法は、不確定要素があることから、本システムでは採用していません。

検討流量

検討流量は、最大5ケースまで設定が可能です。

材料特性値

部材の応力度照査で用いる「鉄筋コンクリート」「鉄筋」(直壁一体型構造)、「無筋コンクリート」(直壁分離型)の強度ごとの許容応力度は、予め登録されている材料から選択するだけで設定できます。 また、各材料の許容応力度の登録内容は、変更・追加・削除の編集が可能です。

形状寸法図

床止めの形状は、「計算実行」することにより、その形状寸法図が作図されます。しゃ水矢板を設けた場合は、そのしゃ水矢板の根入れ長が表示されます。

直壁一体型構造
直壁分離型構造
緩傾斜型構造

全体形状図

全体形状図は、床止めの基本寸法とその上流及び下流側に設置される護床工の各延長、水理計算により求められる各対象位置の水深が表示されます。

直壁一体型構造
直壁分離型構造
緩傾斜型構造

水理計算

床止め設計計算において、必要とされる各対象位置での水理計算を行います。
なお、床止め設計計算においては、水理計算は単位幅流量で行われますが、本システムにおいては「上流側河川」「床止め範囲」「下流側河川」の3区間で「河川幅」「河床勾配(床止め範囲は除く)」「粗度係数」の設定ができます。

水叩き・しゃ水工

床止めの水叩き長、水叩き厚及びしゃ水工の検討を行います。

  • 水叩き長は、「Randの式」「ブライの式」「入力値」による設定ができます。
  • 水叩き厚は、「計算式(従来設計によるブライの式)」「入力値」による設定ができます。
  • しゃ水工の検討では、「レインの式」による必要鉛直方向浸透路長による照査判定を行います。
  • しゃ水矢板の有無を選択できます。
  • しゃ水矢板を設定する場合、しゃ水矢板の根入れ長を「レインの式」を満足するだけの必要長さを自動計算により求めることができます。
  • しゃ水矢板は、上流側・下流側のそれぞれで任意の根入れ長で設定することができます。どちらか一方のみにしゃ水矢板を設けることもできます。
  • しゃ水矢板長は、躯体への「貫入長」及び「丸め」設定をすることで、実際に必要となるしゃ水矢板長が算出されます。
  • 床止め下流端に「水抜き穴」を設置した場合のしゃ水工検討を行うことができます。

床止めの安定計算

安定計算においては、転倒・滑動・支持力の各照査が検討できます。

  • 安定計算では、床止め自重・地震時慣性力・水重量・水圧・土圧・揚圧力の各作用力が考慮されます。
  • 常時、地震時の検討を行います。
  • 揚圧力「無視・考慮」のそれぞれのケースで照査を行います。
  • 水重量は、水理計算結果によらない任意水深の設定ができます。
  • 床止めのカットオフ・本体背面形状の入力ができます。
  • 床止め下流端に水抜き穴を設けることができます。

各構造の安定計算の照査対応は以下となります。

  転倒照査 滑動照査 支持力照査
直壁一体型構造
直壁分離型構造 本体
水叩き
緩傾斜型構造

本体・水叩きの部材設計

本体・水叩き部の部材の応力度計算を行います。
部材設計においては、本体部材と水叩き部材で応力度照査を行います。

  • 許容応力度設計法による照査を行います。
  • 直壁一体型構造は、「鉄筋コンクリート」を対象とした部材計算を行います。
  • 直壁分離型構造は、「無筋コンクリート」を対象とした部材計算を行います。
  • 緩傾斜型構造は、対象外となります。
  • 「ダブル配筋」「シングル配筋」のいずれかの設定ができます。
  • 「複鉄筋計算」「単鉄筋計算」のいずれかの設定ができます。
  • 本体の部材計算では、地震時慣性力・水圧・土圧の各作用力が考慮されます。
  • 水叩きの部材計算では、自重・水重量・揚圧力・地盤反力の各作用力が考慮されます。
  • 水重量は、水理計算結果によらない任意水深の設定が可能です。
  • 応力度照査は、部材の付け根位置の他に任意の計算位置(最大10箇所)の指定ができます。
    ※なお、応力度計算において、軸力は考慮しません。

各構造の部材計算の照査対応は以下となります。

  本体 水叩き
直壁一体型構造
直壁分離型構造
緩傾斜型構造

護床工の設計

護床工長と護床ブロック重量の計算を行います。

  • 上流側護床工、下流側の護床工A区間、護床工B区間のそれぞれの護床工長を決定します。
    ※上流側護床工の長さは入力設定のみとなります。
  • 護床工A区間は、流れの形態によって「射流区間(L1区間)」と「跳水発生区間(L2区間)」のそれぞれにおける護床工長を計算します。
    補助構造物(エンドシル、段上がり)による強制跳水の計算を行うことができます。
  • 上流側護床工、下流側の護床工A区間(2区間)、護床工B区間のそれぞれの護床ブロック重量を算出します。護床工A区間においては、「本体直上流~跳水発生区間前半」「跳水発生区間後半」に区分したそれぞれのブロック重量を算出します。
護床工の計算
護床工の計算(エンドシルによる強制跳水)

価格

落差工の設計[床止め機能版] Ver.4 

新規購入費 
(初年度サブスクリプション費用含む)
165,000円(税込)
サブスクリプション費用(2年目以降) 41,250円(税込) 年単位でのご契約
サブスクリプション制度とは
短期レンタル(1ヵ月間) 82,500円(税込)

資料DL・お問合せ

オンライン個別相談会

当社ソフトウェアを新規で導入ご検討中のお客様向けの個別相談会を実施しております。
最大60分、オンラインで実施いたします。下記よりご希望日時を選択してください。

サブスクリプションサービス

  1. ボリュームライセンスの提供(1製品2チケット)
  2. フローティングライセンスに対応
  3. メンテナンス&アップグレードフリーサービス
  4. サポートサービス(Web・電話)
  5. 綜合メニューランチャーの提供

※ライセンス数:ご購入いただいた製品の数
※チケット数 :ご購入いただいた製品を同時に起動できる台数
サブスクリプションサービスの詳細ページヘ
>>https://www.sogonet.co.jp/subscription/

ご使用・ご提供方法

  • 対応OS Windows 11
  • WEB ライセンス認証版となりますのでマイページ(ホームページ)からのダウンロードが必要です。(インターネット環境必須)
  • Arm版Windowsコンピュータ―(Qualcomm社のCPU Snapdragon Xシリーズを搭載するPC)には対応していません。

こちらの製品もお勧めです

各種お問い合わせのご案内Contact us